「九州最大級ロイヤルスイート & 貸切サウナ併設」都市型ラグジュアリーホテル『スリークアーバンホテル 宮崎』10月20日グランドオープン
暮らすように旅する。全室スイートの新ホテル、宮崎に誕生。

最上級客室「ロイヤルスイート」のリビングダイニングルーム
株式会社aspring(所在地:東京都渋谷区、代表取締役:渡邊あずさ)は、2025年10月20日に「スリークアーバンホテル 宮崎」をグランドオープンいたします。公式サイトでは、2025年10月1日より予約受付を開始しております。
公式サイト:https://sleekhotel.jp/
■新ホテル「スリークアーバンホテル 宮崎」開業について
近年のホテルステイの多様化とサウナ人気の高まりを背景に、『暮らすように旅する』新しいスタイルのホテルとして誕生いたします。
全9室の客室は3つのクラスに分かれ、37.7m²~159.4m²のゆとりあるスイート仕様です。リビングにはソファを備え、キッチンやドラム式洗濯乾燥機を完備し、中長期滞在やワーケーションにも快適に対応いたします。
また、ホテル2階には貸切サウナ「NEST SAUNA(ネストサウナ)」を併設し、一部の客室には専用のロウリュサウナもご用意しております。旅先でも心身をリフレッシュできるプライベート空間を整え、国内外の旅行者の皆さまに向けて、ラグジュアリーでありながら実用性にも優れた新しい旅の拠点をご提供いたします。

■九州地区最大級のロイヤルスイートルーム
■全室スイートルーム仕様(37.7m²~159.4m²)
■全客室にキッチンとドラム式洗濯乾燥機を完備
■ロイヤル/プレミアスイート客室内に専用ロウ
リュサウナを設置
■館内に貸切サウナ『NEST SAUNA』を併設
■宮崎最大の繁華街『ニシタチ』への好アクセス
■セルフチェックインとスマートロックシステム
■九州地区最大級のロイヤルスイートルーム
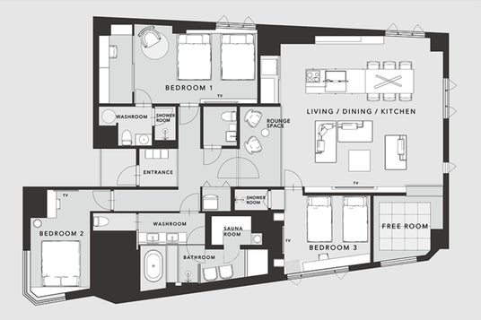
最上級のロイヤルスイートは約160m²の広さを有し、九州でも有数の規模を誇る特別な客室です。3つのベッドルームに加え、アイランドキッチンとダイニングテーブル、3つのトイレ、2つのシャワールームを備え、最大8名までご宿泊いただけます。バスルームには専用ロウリュサウナを設置しており、旅先でも自宅のように寛ぎながら、プライベートなスパ体験をお楽しみいただけます。

ロイヤルスイート/間取り

ロイヤルスイート/BEDROOM1

ロイヤルスイート/BEDROOM2

ロイヤルスイート/BEDROOM3

ロイヤルスイート/ダイニングキッチン

ロイヤルスイート/リビングルーム

ロイヤルスイート/客室内ロウリュサウナ

ロイヤルスイート/バスルーム
■客室一覧

■客室内サウナ・貸切サウナ
ロイヤルスイートおよびプレミアスイートには客室内にロウリュサウナを設置しております。さらに2階には、3室の貸切ロウリュサウナルームを備えた「NEST SAUNA(ネストサウナ)」を併設しております。水風呂にはチラー(※)を導入しており、プライベートかつ快適なサウナ体験を提供いたします。開業時は宿泊者のみを対象とし、将来的には会員制による外部利用への展開を予定しております。
※チラー:水温を低温に保つための冷却装置

貸切サウナ NEST SAUNA

NEST SAUNA ルームNO.1

客室内ロウリュサウナ
■宮崎最大の繁華街ニシタチへの好アクセス
宮崎最大の繁華街「西橘通り(ニシタチ)」まで徒歩圏内に位置しております。ニシタチエリアは、約1,100軒の飲食店が軒を連ね、地鶏料理や焼肉、居酒屋、バー、フルーツパーラーなど、多彩な味覚が集う宮崎随一のグルメエリアです。地域の方に親しまれる名店に気軽に足を運ぶことができ、地元食材を活かした郷土料理を身近に楽しめる利便性の高い環境です。
■セルフチェックインとスマートロックシステム
当ホテルではスタッフが常駐せず、暗証番号やQRコードを用いたセルフチェックインを導入しております。ご到着時に予約IDなどをタブレットに入力していただくことでチェックインが完了し、「ゲストエリア」と「客室」への入室用の鍵番号が発行されるスマートロックシステムを採用しています。プライバシーに配慮した仕組みにより、スムーズかつ安心してご滞在いただけます。
■エグゼクティブサービス
ロイヤルスイートでのケータリングサービスを、宿泊とのセットプランとして2026年1月より開始いたします。宮崎の新鮮な地元食材を使用し、イタリアンや和食などをシェフが目の前で調理してご提供いたします。サウナでリフレッシュした後、パジャマやリラックスウェアのまま、ご友人やご家族とゆったりとお楽しみいただけます。詳しくは公式サイトにて公表してまいります。

ライブキッチン
地元食材をふんだんに

アンティパスト
紫キャベツパウダーで

2種のポテト
燻製クリーム添え

クロケッタ
ウニソース
■オープン記念キャンペーン
公式サイトからご予約のお客様には、ご宿泊特典としてNEST SAUNA(2F貸切サウナ)をご宿泊中1回無料でご利用いただけます。
<< スリークアーバンホテル 宮崎 オープン記念キャンペーン >>
キャンペーン期間:2025年10月20日~12月31日
※詳細は公式サイトをご覧ください。
■支配人コメント
私たちが目指したのは、ただ泊まる場所ではなく、訪れる方が日常を離れてゆったり過ごせる「特別な居場所」を提供することです。全室スイート仕様としたのは滞在の質を高めるためであり、プライベートサウナを備えた空間は、心身を整えながら快適に過ごせるよう設計しております。宮崎の街に寄り添い、都会的な洗練と温もりを両立させた「もう一つの我が家」として、ここでの滞在が記憶に残る時間となることを願っております。
■ホテル概要
施設名:スリークアーバンホテル 宮崎(SLEEK URBAN HOTEL MIYAZAKI)
所在地:〒880-0006 宮崎県宮崎市千草町5-11
TEL:0985-65-3444
客室数:9室(ロイヤル1室/プレミア2室/ジュニア6室)
支配人:長友 敬一
グランドオープン:2025年10月20日
設計・デザイン:株式会社HARE
施工:株式会社増田工務店
■運営
株式会社aspring 代表取締役 渡邊あずさ
〒150-0043 東京都渋谷区道玄坂1丁目10番8号 渋谷道玄坂東急ビル2F-C
公式サイト:https://sleekhotel.jp/
特長:九州地区最大級ロイヤルスイートルーム、全室スイートルーム(37.7m²~159.4m²)、客室内ロウリュサウナ(ロイヤル・プレミアスイート)、貸切ロウリュサウナ「NEST SAUNA」、キッチン・ドラム式洗濯機完備、宮崎市街地隣接、スタッフ非常駐、セルフチェックイン、スマートロック
<< レセプションパーティおよび内覧会開催のお知らせ >>
グランドオープンに先立ち、内覧会を兼ねたレセプションパーティを開催いたします。
取材をご希望の方は、事前に下記までご連絡ください。
日時:10月11日 16:00~20:00
会場:スリークアーバンホテル 宮崎 501号室 ロイヤルスイートルーム
※今後展開予定のイタリアンケータリングを、フィンガースタイルでご試食いただけます。
<< お問い合わせ先 >>
スリークアーバンホテル 宮崎 支配人 長友敬一
〒880-0006 宮崎県宮崎市千草町5-11
TEL:0985-65-3444
E‐mail:contact@sleekhotel.jp
企業プレスリリース詳細へ
PRTIMESトップへ

最上級客室「ロイヤルスイート」のリビングダイニングルーム
株式会社aspring(所在地:東京都渋谷区、代表取締役:渡邊あずさ)は、2025年10月20日に「スリークアーバンホテル 宮崎」をグランドオープンいたします。公式サイトでは、2025年10月1日より予約受付を開始しております。
公式サイト:https://sleekhotel.jp/
■新ホテル「スリークアーバンホテル 宮崎」開業について
近年のホテルステイの多様化とサウナ人気の高まりを背景に、『暮らすように旅する』新しいスタイルのホテルとして誕生いたします。
全9室の客室は3つのクラスに分かれ、37.7m²~159.4m²のゆとりあるスイート仕様です。リビングにはソファを備え、キッチンやドラム式洗濯乾燥機を完備し、中長期滞在やワーケーションにも快適に対応いたします。
また、ホテル2階には貸切サウナ「NEST SAUNA(ネストサウナ)」を併設し、一部の客室には専用のロウリュサウナもご用意しております。旅先でも心身をリフレッシュできるプライベート空間を整え、国内外の旅行者の皆さまに向けて、ラグジュアリーでありながら実用性にも優れた新しい旅の拠点をご提供いたします。

■九州地区最大級のロイヤルスイートルーム
■全室スイートルーム仕様(37.7m²~159.4m²)
■全客室にキッチンとドラム式洗濯乾燥機を完備
■ロイヤル/プレミアスイート客室内に専用ロウ
リュサウナを設置
■館内に貸切サウナ『NEST SAUNA』を併設
■宮崎最大の繁華街『ニシタチ』への好アクセス
■セルフチェックインとスマートロックシステム
■九州地区最大級のロイヤルスイートルーム
最上級のロイヤルスイートは約160m²の広さを有し、九州でも有数の規模を誇る特別な客室です。3つのベッドルームに加え、アイランドキッチンとダイニングテーブル、3つのトイレ、2つのシャワールームを備え、最大8名までご宿泊いただけます。バスルームには専用ロウリュサウナを設置しており、旅先でも自宅のように寛ぎながら、プライベートなスパ体験をお楽しみいただけます。

ロイヤルスイート/間取り

ロイヤルスイート/BEDROOM1

ロイヤルスイート/BEDROOM2

ロイヤルスイート/BEDROOM3

ロイヤルスイート/ダイニングキッチン

ロイヤルスイート/リビングルーム

ロイヤルスイート/客室内ロウリュサウナ

ロイヤルスイート/バスルーム
■客室一覧

■客室内サウナ・貸切サウナ
ロイヤルスイートおよびプレミアスイートには客室内にロウリュサウナを設置しております。さらに2階には、3室の貸切ロウリュサウナルームを備えた「NEST SAUNA(ネストサウナ)」を併設しております。水風呂にはチラー(※)を導入しており、プライベートかつ快適なサウナ体験を提供いたします。開業時は宿泊者のみを対象とし、将来的には会員制による外部利用への展開を予定しております。
※チラー:水温を低温に保つための冷却装置

貸切サウナ NEST SAUNA

NEST SAUNA ルームNO.1

客室内ロウリュサウナ
■宮崎最大の繁華街ニシタチへの好アクセス
宮崎最大の繁華街「西橘通り(ニシタチ)」まで徒歩圏内に位置しております。ニシタチエリアは、約1,100軒の飲食店が軒を連ね、地鶏料理や焼肉、居酒屋、バー、フルーツパーラーなど、多彩な味覚が集う宮崎随一のグルメエリアです。地域の方に親しまれる名店に気軽に足を運ぶことができ、地元食材を活かした郷土料理を身近に楽しめる利便性の高い環境です。
■セルフチェックインとスマートロックシステム
当ホテルではスタッフが常駐せず、暗証番号やQRコードを用いたセルフチェックインを導入しております。ご到着時に予約IDなどをタブレットに入力していただくことでチェックインが完了し、「ゲストエリア」と「客室」への入室用の鍵番号が発行されるスマートロックシステムを採用しています。プライバシーに配慮した仕組みにより、スムーズかつ安心してご滞在いただけます。
■エグゼクティブサービス
ロイヤルスイートでのケータリングサービスを、宿泊とのセットプランとして2026年1月より開始いたします。宮崎の新鮮な地元食材を使用し、イタリアンや和食などをシェフが目の前で調理してご提供いたします。サウナでリフレッシュした後、パジャマやリラックスウェアのまま、ご友人やご家族とゆったりとお楽しみいただけます。詳しくは公式サイトにて公表してまいります。

ライブキッチン
地元食材をふんだんに

アンティパスト
紫キャベツパウダーで

2種のポテト
燻製クリーム添え

クロケッタ
ウニソース
■オープン記念キャンペーン
公式サイトからご予約のお客様には、ご宿泊特典としてNEST SAUNA(2F貸切サウナ)をご宿泊中1回無料でご利用いただけます。
<< スリークアーバンホテル 宮崎 オープン記念キャンペーン >>
キャンペーン期間:2025年10月20日~12月31日
※詳細は公式サイトをご覧ください。
■支配人コメント
私たちが目指したのは、ただ泊まる場所ではなく、訪れる方が日常を離れてゆったり過ごせる「特別な居場所」を提供することです。全室スイート仕様としたのは滞在の質を高めるためであり、プライベートサウナを備えた空間は、心身を整えながら快適に過ごせるよう設計しております。宮崎の街に寄り添い、都会的な洗練と温もりを両立させた「もう一つの我が家」として、ここでの滞在が記憶に残る時間となることを願っております。
■ホテル概要
施設名:スリークアーバンホテル 宮崎(SLEEK URBAN HOTEL MIYAZAKI)
所在地:〒880-0006 宮崎県宮崎市千草町5-11
TEL:0985-65-3444
客室数:9室(ロイヤル1室/プレミア2室/ジュニア6室)
支配人:長友 敬一
グランドオープン:2025年10月20日
設計・デザイン:株式会社HARE
施工:株式会社増田工務店
■運営
株式会社aspring 代表取締役 渡邊あずさ
〒150-0043 東京都渋谷区道玄坂1丁目10番8号 渋谷道玄坂東急ビル2F-C
公式サイト:https://sleekhotel.jp/
特長:九州地区最大級ロイヤルスイートルーム、全室スイートルーム(37.7m²~159.4m²)、客室内ロウリュサウナ(ロイヤル・プレミアスイート)、貸切ロウリュサウナ「NEST SAUNA」、キッチン・ドラム式洗濯機完備、宮崎市街地隣接、スタッフ非常駐、セルフチェックイン、スマートロック
<< レセプションパーティおよび内覧会開催のお知らせ >>
グランドオープンに先立ち、内覧会を兼ねたレセプションパーティを開催いたします。
取材をご希望の方は、事前に下記までご連絡ください。
日時:10月11日 16:00~20:00
会場:スリークアーバンホテル 宮崎 501号室 ロイヤルスイートルーム
※今後展開予定のイタリアンケータリングを、フィンガースタイルでご試食いただけます。
<< お問い合わせ先 >>
スリークアーバンホテル 宮崎 支配人 長友敬一
〒880-0006 宮崎県宮崎市千草町5-11
TEL:0985-65-3444
E‐mail:contact@sleekhotel.jp
企業プレスリリース詳細へ
PRTIMESトップへ
