"静寂と絶景"を独占するプライベートヴィラ「シエロ箱根仙石原」が2025年6月にオープン
~源泉かけ流し温泉・サウナ・プール付き、1日1組限定の非日常体験を~

2025年6月、神奈川県・箱根町仙石原に新たな貸別荘「シエロ箱根仙石原」がオープンいたします。富士山を正面に望む開放的なロケーションと、源泉かけ流し温泉・プライベートプールや本格フィンランド式サウナを備えた、1日1組限定の特別な空間です。
本施設は、大切な方との特別な時間を「静寂と美景」に包まれて過ごすことをコンセプトに設計されました。都市の喧騒から離れ、心と身体を解きほぐす完全プライベートな時間をご提供いたします。

富士山ビューの絶景ロケーション
リビングやテラス、ベッドルームからは、季節や天候で表情を変える雄大な富士山を一望。朝焼けや夕暮れ時には、まるで絵画のような風景が広がります。
源泉かけ流し温泉と本格サウナ
箱根・大涌谷から引湯した白濁の天然温泉を、源泉かけ流しで贅沢に。専用の湯船では、硫黄を含む本格温泉が肌をやさしく包み込み、日々の疲れをゆるやかに解きほぐします。さらに施設内には、セルフロウリュが可能な本格フィンランド式サウナを併設。火照った身体を外気でととのえる至福のリラクゼーションをご体感いただけます。
※大涌谷における土砂流出の影響により、現在、温泉の供給が一時的に停止しており、通常の給湯によるお湯をご提供しております。


専用プールとプライベートガーデン
青空の下で楽しむプールタイムや、夜のライトアップされた水辺の風景は、都会では味わえない贅沢なひととき。シーズン中(6月~9月)は温水での利用が可能。冬季は観賞用およびサウナの水風呂としてもお楽しみいただけます。
洗練された空間設計
大開口の窓や吹き抜けからは自然光が差し込み、心地よい開放感に包まれます。LDKは約59平方メートル の広さを誇り、シームレスにテラスへと続く設計により、より一層の広がりを感じられる空間に仕上がっています。キッチンからそのまま繋がるテラスでは自然に囲まれながらBBQを楽しむことができ、特別なひとときを演出します。


テラスではBBQも

セルフロウリュ式サウナ

春には桜も
ベッドルーム
趣の異なる3つのベッドルームをご用意。それぞれの空間にダブルベッドを備え、心地よい眠りと静けさに包まれる、贅沢なひとときをお過ごしいただけます。

晴れた日には富士山が見れます

4つのベッドで楽しく過ごせます

和室のベッドルーム
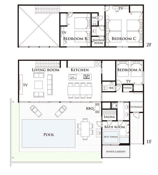
間取り

ゆったりとした197平方メートル の邸宅
■ 施設概要
施設名:シエロ箱根仙石原
所在地:神奈川県足柄下郡箱根町仙石原1245-31
定員 :最大12名(3LDK、ダブルベッド8台)
料金 :1泊 128,000円~(税込/1棟貸切/時期により変動)
設備 :天然温泉/サウナ/プール/水風呂/BBQ/Wi-Fi/キッチン/ランドリーほか
ペット:不可
予約受付:公式HP、Airbnb、Booking.com、その他OTA
公式サイト: https://cielo-hakone.jp
Instagram:https://www.instagram.com/cielo.hakone/
■ 今後の展望
今後は、家族婚プラン、記念日向けプラン、季節限定の滞在プログラムなど、より多様なニーズに応える体験を提供してまいります。
■ お問い合わせ先
担当:田中
メール:contact@familiar-link.com
企業プレスリリース詳細へ
PRTIMESトップへ

2025年6月、神奈川県・箱根町仙石原に新たな貸別荘「シエロ箱根仙石原」がオープンいたします。富士山を正面に望む開放的なロケーションと、源泉かけ流し温泉・プライベートプールや本格フィンランド式サウナを備えた、1日1組限定の特別な空間です。
本施設は、大切な方との特別な時間を「静寂と美景」に包まれて過ごすことをコンセプトに設計されました。都市の喧騒から離れ、心と身体を解きほぐす完全プライベートな時間をご提供いたします。
シエロ箱根仙石原 施設の特徴

富士山ビューの絶景ロケーション
リビングやテラス、ベッドルームからは、季節や天候で表情を変える雄大な富士山を一望。朝焼けや夕暮れ時には、まるで絵画のような風景が広がります。
源泉かけ流し温泉と本格サウナ
箱根・大涌谷から引湯した白濁の天然温泉を、源泉かけ流しで贅沢に。専用の湯船では、硫黄を含む本格温泉が肌をやさしく包み込み、日々の疲れをゆるやかに解きほぐします。さらに施設内には、セルフロウリュが可能な本格フィンランド式サウナを併設。火照った身体を外気でととのえる至福のリラクゼーションをご体感いただけます。
※大涌谷における土砂流出の影響により、現在、温泉の供給が一時的に停止しており、通常の給湯によるお湯をご提供しております。


専用プールとプライベートガーデン
青空の下で楽しむプールタイムや、夜のライトアップされた水辺の風景は、都会では味わえない贅沢なひととき。シーズン中(6月~9月)は温水での利用が可能。冬季は観賞用およびサウナの水風呂としてもお楽しみいただけます。
洗練された空間設計
大開口の窓や吹き抜けからは自然光が差し込み、心地よい開放感に包まれます。LDKは約59平方メートル の広さを誇り、シームレスにテラスへと続く設計により、より一層の広がりを感じられる空間に仕上がっています。キッチンからそのまま繋がるテラスでは自然に囲まれながらBBQを楽しむことができ、特別なひとときを演出します。


テラスではBBQも

セルフロウリュ式サウナ

春には桜も
ベッドルーム
趣の異なる3つのベッドルームをご用意。それぞれの空間にダブルベッドを備え、心地よい眠りと静けさに包まれる、贅沢なひとときをお過ごしいただけます。

晴れた日には富士山が見れます

4つのベッドで楽しく過ごせます

和室のベッドルーム
間取り

ゆったりとした197平方メートル の邸宅
■ 施設概要
施設名:シエロ箱根仙石原
所在地:神奈川県足柄下郡箱根町仙石原1245-31
定員 :最大12名(3LDK、ダブルベッド8台)
料金 :1泊 128,000円~(税込/1棟貸切/時期により変動)
設備 :天然温泉/サウナ/プール/水風呂/BBQ/Wi-Fi/キッチン/ランドリーほか
ペット:不可
予約受付:公式HP、Airbnb、Booking.com、その他OTA
公式サイト: https://cielo-hakone.jp
Instagram:https://www.instagram.com/cielo.hakone/
■ 今後の展望
今後は、家族婚プラン、記念日向けプラン、季節限定の滞在プログラムなど、より多様なニーズに応える体験を提供してまいります。
■ お問い合わせ先
担当:田中
メール:contact@familiar-link.com
企業プレスリリース詳細へ
PRTIMESトップへ
